株式会社Beezロゴ


ホーム
物件情報
会社案内
仲介実績
お問い合わせ


埼玉で 貸倉庫・貸工場・売倉庫・売工場 をお探しのお客様!!
まずはお気軽にお問い合わせ下さい  048-263-2882

物件情報
現在の位置:HOME物件情報501坪以上の物件>物件詳細


501坪以上の物件
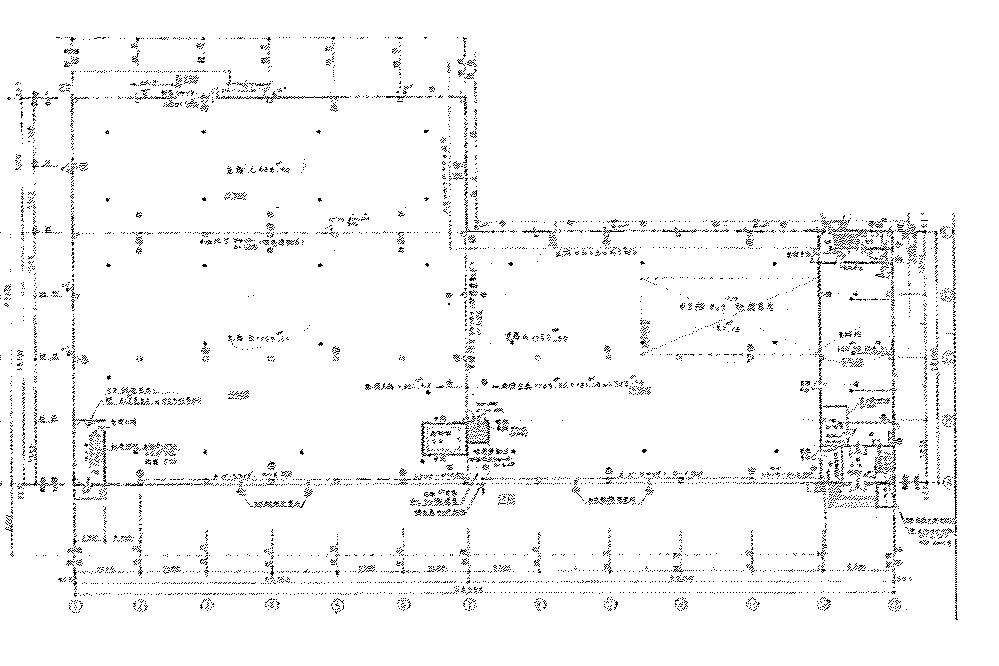
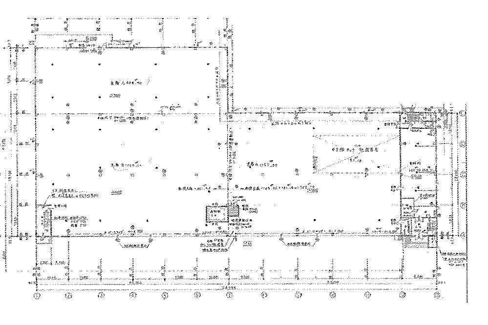
埼玉県熊谷市三ヶ尻の貸倉庫
  • 関越花園ICより約8.3kmの貸し倉庫物件
  • 工業専用地域で大型車可な貸倉庫

拡大
 


物件NO

所  在  地
用途・構造 坪数
S5-1007 熊谷市三ヶ尻 工専・2階 2103.9坪
賃貸条件
賃料 6,600,000円/月(坪単価3,130円)
預託金 賃料の1ヶ月分
礼金 賃料の1ヶ月分
仲介手数料 賃料の1ヶ月分
入居時期 2026年7月上旬予定
備考
2階建2103坪 高床式 大型車出入可
天高約8m リフト付き 工業専用地域内
関越花園ICより約8.3kmの貸し倉庫物件

物件一覧に戻る



その他の一覧はこちら

【1坪〜100坪の物件】
【101坪〜200坪の物件】
【201坪〜300坪の物件】
【301坪〜400坪の物件】
【401坪〜500坪の物件】
【501坪以上の物件】
【店舗物件】
【売物件】


掲載している以外にも、たくさんの倉庫・工場物件をご用意しております。
ご希望の物件がない場合でも、お問い合わせからお気軽にお尋ねください。



埼玉の貸し倉庫・貸し工場・売り倉庫・売り工場

株式会社ビーズ

埼玉県川口市芝新町8-22
お電話、FAXでのお問い合わせは
TEL:048-263-2882 FAX:048-263-2883までお願いします。

 
Copyrights (c)2000-2013 by Beez All rights reserved.